A vendre
Disponible
Estimation gratuite
THIEU I REF. 5593814
360000€
  • 3 chambres
  • 1 salles de bain
  • Sup. habitable : 223m²
Je veux visiter ce bien

Description

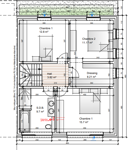
Le service immobilier vous présente un projet pour une nouvelle construction 3 façades vendue en gros œuvre fermé de +/- 223m2, situé dans un cadre champêtre sur un terrain de 05a 35ca avec vue imprenable sur l'ascenseur de Strépy-Bracquegnies et à proximité des axes routiers entre Mons et Charleroi.

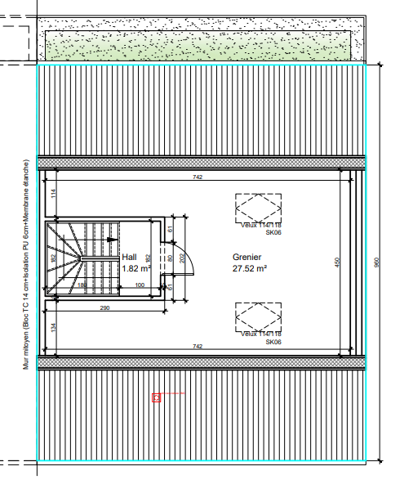
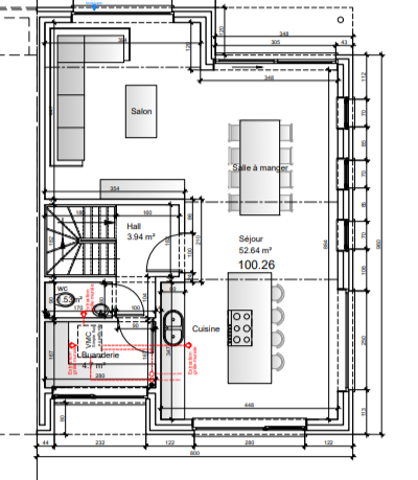
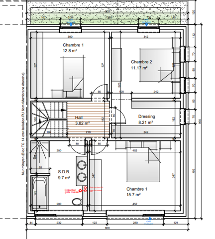
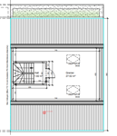
Composition: Hall d'entrée, garage, à l'étage: hall, séjour, cuisine, buanderie, wc ind, 2ième étage: hall de nuit, 3 chambres, salle de bain, dressing, grenier de 28m2, construction sur un terrain d'une façade de 12m sur une profondeur de +/-49m. 

Confort: Châssis triple vitrage, tuiles terre cuite, sous sol en béton armé, citerne eau de pluie 10.000 litres.  PEB prévu suivant système de chauffage: (A) Prix: 360.000€ Htva.

Venez découvrir la suite en contactant le 071/38.44.44. Je veux visiter ce bien
Hakim
ZAGGA Hakim

Vous souhaitez visiter ce bien ?

Appelez-nous au 071/38.44.44 ou complétez ce formulaire

    Caractéristiques

    Général
    • Catégorie : Maison
    • Surface habitable : 223m²
    • Surface du terrain : 535m²
    • Volets : non
    • Alarme : non
    Extérieur
    • Parking : oui
    • Jardin : oui
    • Garage : oui
    Intérieur
    • Accès handicapé : non
    • Nombre de chambres : 3
    • Chambre 1 : 15,7m²
    • Chambre 2 : 12,8m²
    • Chambre 3 : 11,17m²
    • Salle de séjour : 52.64m²
    • Nombre de salles de bain : 1
    • Ascenseur : non
    • Buanderie : oui
    • Véranda : non
    • Cave : non
    • Feu ouvert : non
    Energie
    • Double vitrage : non

    Ces biens pourraient vous intéresser

    Service Immobilier Service Immobilier Service Immobilier Service Immobilier Service Immobilier Service Immobilier Service Immobilier Service Immobilier Service Immobilier Service Immobilier Service Immobilier Service Immobilier
    A vendre
    SART-EUSTACHE
    Maison
    • 2
    • 1
    • 130m²
    Service Immobilier Service Immobilier Service Immobilier Service Immobilier Service Immobilier Service Immobilier Service Immobilier Service Immobilier Service Immobilier Service Immobilier Service Immobilier Service Immobilier
    A vendre
    SART-EUSTACHE
    Maison
    • 2
    • 1
    • 130m²
    Service Immobilier Service Immobilier Service Immobilier Service Immobilier
    A vendre
    PRESLES
    Garage/stationnement
    • 17m²
    Service Immobilier Service Immobilier Service Immobilier Service Immobilier Service Immobilier Service Immobilier Service Immobilier Service Immobilier
    A vendre
    GILLY
    Maison
    • 1
    • 1
    • 60m²
    Service Immobilier Service Immobilier Service Immobilier Service Immobilier Service Immobilier Service Immobilier Service Immobilier Service Immobilier
    A vendre
    GILLY
    Maison
    • 1
    • 1
    • 60m²
    BOUFFIOULX
    Maison
    149.000€
    • 3
    • 1
    • 155m²
    BOUFFIOULX
    Maison
    129.000€
    • 2
    • 1
    • 135m²
    Châtelet
    Maison
    269.000€
    • 6
    • 2
    • 250m²
    MARCINELLE
    Appartement
    79.000€
    • 1
    • 1
    • 75m²
    Charleroi
    Commercial
    65.000€
    • 130m²
    Charleroi Marcinelle
    Maison
    649.000€
    • 9
    • 6
    • 500m²
    MONT-SUR-MARCHIENNE
    Maison
    429.000€
    • 5
    • 2
    • 270m²
    Service Immobilier Service Immobilier Service Immobilier Service Immobilier Service Immobilier Service Immobilier Service Immobilier Service Immobilier Service Immobilier Service Immobilier Service Immobilier Service Immobilier Service Immobilier Service Immobilier Service Immobilier Service Immobilier Service Immobilier Service Immobilier
    A vendre
    NALINNES
    Maison
    • 4
    • 1
    • 180m²
    Châtelet
    Maison
    169.000€
    • 3
    • 2
    • 120m²
    Service Immobilier Service Immobilier Service Immobilier Service Immobilier Service Immobilier Service Immobilier Service Immobilier Service Immobilier Service Immobilier Service Immobilier Service Immobilier Service Immobilier Service Immobilier Service Immobilier Service Immobilier
    A vendre
    PRESLES
    Maison
    • 2
    • 1
    • 80m²
    Service Immobilier Service Immobilier Service Immobilier Service Immobilier Service Immobilier Service Immobilier Service Immobilier Service Immobilier Service Immobilier Service Immobilier Service Immobilier Service Immobilier Service Immobilier Service Immobilier Service Immobilier Service Immobilier Service Immobilier Service Immobilier Service Immobilier Service Immobilier
    A vendre
    Charleroi
    Maison
    • 6
    • 6
    • 380m²
    Service Immobilier Service Immobilier Service Immobilier Service Immobilier Service Immobilier Service Immobilier Service Immobilier Service Immobilier Service Immobilier Service Immobilier Service Immobilier Service Immobilier Service Immobilier Service Immobilier
    A vendre
    Châtelet
    Maison
    • 2
    • 1
    • 125m²
    Service Immobilier Service Immobilier Service Immobilier Service Immobilier Service Immobilier Service Immobilier Service Immobilier Service Immobilier Service Immobilier Service Immobilier Service Immobilier
    A vendre
    LODELINSART
    Maison
    • 3
    • 1
    • 125m²
    Service Immobilier Service Immobilier Service Immobilier Service Immobilier Service Immobilier Service Immobilier Service Immobilier Service Immobilier Service Immobilier Service Immobilier Service Immobilier Service Immobilier Service Immobilier Service Immobilier Service Immobilier Service Immobilier Service Immobilier Service Immobilier Service Immobilier Service Immobilier Service Immobilier Service Immobilier Service Immobilier Service Immobilier Service Immobilier
    A vendre
    FARCIENNES
    Maison
    • 3
    • 2
    • 200m²
    Service Immobilier Service Immobilier Service Immobilier Service Immobilier Service Immobilier Service Immobilier Service Immobilier Service Immobilier Service Immobilier Service Immobilier Service Immobilier Service Immobilier Service Immobilier Service Immobilier Service Immobilier Service Immobilier Service Immobilier Service Immobilier Service Immobilier Service Immobilier Service Immobilier Service Immobilier
    A vendre
    MONT-SUR-MARCHIENNE
    Maison
    • 6
    • 3
    • 235m²
    Service Immobilier Service Immobilier Service Immobilier Service Immobilier Service Immobilier Service Immobilier Service Immobilier Service Immobilier Service Immobilier Service Immobilier Service Immobilier Service Immobilier Service Immobilier Service Immobilier Service Immobilier
    A vendre
    Charleroi
    Maison
    • 3
    • 1
    • 125m²
    Service Immobilier Service Immobilier Service Immobilier Service Immobilier Service Immobilier Service Immobilier Service Immobilier Service Immobilier Service Immobilier Service Immobilier Service Immobilier Service Immobilier Service Immobilier Service Immobilier Service Immobilier Service Immobilier Service Immobilier Service Immobilier Service Immobilier
    A vendre
    GERPINNES
    Maison
    • 6
    • 5
    FARCIENNES
    Maison
    99.000€
    • 3
    • 1
    • 120m²
    CHATELET
    Appartement
    69.000€
    • 1
    • 1
    CHATELET
    Maison
    135.000€
    • 3
    • 1
    • 115m²
    MONTIGNIES-SUR-SAMBRE
    Maison
    349.000€
    • 3
    • 1
    • 175m²
    Service Immobilier Service Immobilier Service Immobilier Service Immobilier Service Immobilier Service Immobilier Service Immobilier Service Immobilier Service Immobilier Service Immobilier Service Immobilier
    A vendre
    Aiseau-Presles
    Maison
    • 2
    • 1
    • 80m²
    Service Immobilier Service Immobilier Service Immobilier Service Immobilier Service Immobilier Service Immobilier Service Immobilier Service Immobilier Service Immobilier Service Immobilier Service Immobilier Service Immobilier Service Immobilier Service Immobilier Service Immobilier Service Immobilier Service Immobilier Service Immobilier Service Immobilier Service Immobilier Service Immobilier
    A vendre
    CHATELINEAU
    Maison
    • 4
    • 3
    • 400m²
    GILLY
    Appartement
    99.000€
    • 2
    • 1
    • 71m²
    Service Immobilier Service Immobilier Service Immobilier Service Immobilier Service Immobilier Service Immobilier Service Immobilier Service Immobilier Service Immobilier Service Immobilier Service Immobilier Service Immobilier Service Immobilier Service Immobilier Service Immobilier
    A vendre
    MARCHIENNE-AU-PONT
    Maison
    • 2
    • 1
    • 105m²
    Service Immobilier Service Immobilier Service Immobilier Service Immobilier Service Immobilier Service Immobilier Service Immobilier Service Immobilier Service Immobilier Service Immobilier Service Immobilier Service Immobilier Service Immobilier Service Immobilier Service Immobilier Service Immobilier Service Immobilier Service Immobilier
    A vendre
    JUMET
    Maison
    • 3
    • 1
    • 120m²
    Service Immobilier Service Immobilier Service Immobilier Service Immobilier Service Immobilier Service Immobilier Service Immobilier Service Immobilier Service Immobilier Service Immobilier Service Immobilier Service Immobilier Service Immobilier Service Immobilier
    A vendre
    GILLY
    Maison
    • 2
    • 1
    • 80m²
    Service Immobilier Service Immobilier Service Immobilier Service Immobilier Service Immobilier Service Immobilier Service Immobilier Service Immobilier
    A vendre
    Farciennes
    Maison
    • 3
    • 1
    • 75m²
    Service Immobilier Service Immobilier Service Immobilier Service Immobilier Service Immobilier Service Immobilier Service Immobilier Service Immobilier Service Immobilier Service Immobilier Service Immobilier Service Immobilier Service Immobilier
    A vendre
    Aiseau-Presles
    Maison
    • 2
    • 1
    Service Immobilier Service Immobilier Service Immobilier Service Immobilier Service Immobilier Service Immobilier Service Immobilier Service Immobilier Service Immobilier Service Immobilier Service Immobilier Service Immobilier Service Immobilier Service Immobilier Service Immobilier Service Immobilier Service Immobilier Service Immobilier Service Immobilier Service Immobilier Service Immobilier Service Immobilier Service Immobilier Service Immobilier Service Immobilier Service Immobilier Service Immobilier Service Immobilier Service Immobilier Service Immobilier Service Immobilier Service Immobilier Service Immobilier Service Immobilier
    A vendre
    CHATELET
    Maison
    • 2
    • 2
    • 140m²
    Service Immobilier Service Immobilier Service Immobilier Service Immobilier Service Immobilier Service Immobilier Service Immobilier Service Immobilier Service Immobilier Service Immobilier Service Immobilier Service Immobilier Service Immobilier Service Immobilier Service Immobilier
    A vendre
    Montignies-sur-Sambre
    Maison
    • 2
    • 1
    • 90m²
    Service Immobilier Service Immobilier Service Immobilier Service Immobilier Service Immobilier Service Immobilier Service Immobilier Service Immobilier Service Immobilier Service Immobilier Service Immobilier Service Immobilier Service Immobilier
    A vendre
    DAMPREMY
    Maison
    • 2
    • 1
    • 100m²
    CHATELET
    Maison
    209.000€
    • 3
    • 1
    • 110m²
    CHATELINEAU
    Maison
    149.000€
    • 3
    • 2
    • 140m²
    Service Immobilier Service Immobilier Service Immobilier Service Immobilier Service Immobilier Service Immobilier Service Immobilier Service Immobilier Service Immobilier Service Immobilier Service Immobilier Service Immobilier Service Immobilier Service Immobilier Service Immobilier Service Immobilier Service Immobilier Service Immobilier Service Immobilier Service Immobilier Service Immobilier Service Immobilier Service Immobilier Service Immobilier Service Immobilier Service Immobilier Service Immobilier
    A vendre
    CHARLEROI
    Maison
    • 3
    • 3
    • 170m²
    Service Immobilier Service Immobilier Service Immobilier Service Immobilier Service Immobilier Service Immobilier Service Immobilier
    A vendre
    Châtelet
    Industriel
    • 380m²
    Service Immobilier Service Immobilier Service Immobilier Service Immobilier Service Immobilier Service Immobilier Service Immobilier Service Immobilier Service Immobilier Service Immobilier Service Immobilier Service Immobilier Service Immobilier Service Immobilier Service Immobilier Service Immobilier Service Immobilier
    A vendre
    CHATELET
    Maison
    • 4
    • 1
    • 125m²
    Service Immobilier Service Immobilier Service Immobilier Service Immobilier Service Immobilier Service Immobilier Service Immobilier Service Immobilier Service Immobilier Service Immobilier Service Immobilier Service Immobilier Service Immobilier Service Immobilier
    A vendre
    CHARLEROI
    Maison
    • 4
    • 3
    Service Immobilier Service Immobilier Service Immobilier Service Immobilier Service Immobilier Service Immobilier Service Immobilier Service Immobilier Service Immobilier Service Immobilier Service Immobilier Service Immobilier Service Immobilier Service Immobilier Service Immobilier Service Immobilier Service Immobilier Service Immobilier Service Immobilier Service Immobilier Service Immobilier
    A vendre
    PONT-A-CELLES
    Maison
    • 4
    • 1
    • 165m²
    Service Immobilier Service Immobilier Service Immobilier Service Immobilier Service Immobilier Service Immobilier Service Immobilier Service Immobilier Service Immobilier Service Immobilier Service Immobilier Service Immobilier Service Immobilier Service Immobilier
    A vendre
    Châtelet
    Maison
    • 4
    • 1
    Service Immobilier Service Immobilier Service Immobilier Service Immobilier Service Immobilier Service Immobilier Service Immobilier Service Immobilier Service Immobilier Service Immobilier Service Immobilier Service Immobilier Service Immobilier Service Immobilier Service Immobilier Service Immobilier Service Immobilier Service Immobilier Service Immobilier Service Immobilier
    A vendre
    CHATELINEAU
    Maison
    • 4
    • 2
    • 180m²
    Service Immobilier Service Immobilier Service Immobilier Service Immobilier Service Immobilier Service Immobilier Service Immobilier Service Immobilier Service Immobilier Service Immobilier Service Immobilier Service Immobilier Service Immobilier Service Immobilier Service Immobilier
    A vendre
    CHATELET
    Maison
    • 2
    • 1
    • 114m²
    Service Immobilier Service Immobilier Service Immobilier Service Immobilier Service Immobilier Service Immobilier Service Immobilier Service Immobilier Service Immobilier Service Immobilier Service Immobilier Service Immobilier Service Immobilier Service Immobilier Service Immobilier Service Immobilier Service Immobilier Service Immobilier
    A vendre
    SART-EUSTACHE
    Maison
    • 3
    • 1
    • 225m²
    Service Immobilier Service Immobilier Service Immobilier Service Immobilier Service Immobilier Service Immobilier Service Immobilier Service Immobilier Service Immobilier Service Immobilier Service Immobilier Service Immobilier
    A vendre
    CHATELET
    Maison
    • 2
    • 1
    • 80m²
    Service Immobilier Service Immobilier Service Immobilier Service Immobilier Service Immobilier Service Immobilier Service Immobilier Service Immobilier Service Immobilier Service Immobilier
    A vendre
    JUMET
    Maison
    • 3
    • 1
    • 70m²
    Service Immobilier Service Immobilier Service Immobilier Service Immobilier Service Immobilier Service Immobilier Service Immobilier Service Immobilier Service Immobilier Service Immobilier Service Immobilier Service Immobilier Service Immobilier Service Immobilier Service Immobilier Service Immobilier Service Immobilier Service Immobilier Service Immobilier Service Immobilier
    A vendre
    MARCHIENNE-AU-PONT/ JUMET
    Maison
    • 3
    • 1
    • 100m²
    Service Immobilier Service Immobilier Service Immobilier Service Immobilier Service Immobilier Service Immobilier Service Immobilier Service Immobilier Service Immobilier Service Immobilier Service Immobilier Service Immobilier Service Immobilier Service Immobilier
    A vendre
    Bouffioulx
    Maison
    • 3
    • 1
    • 150m²
    Service Immobilier Service Immobilier Service Immobilier Service Immobilier Service Immobilier Service Immobilier Service Immobilier Service Immobilier Service Immobilier Service Immobilier Service Immobilier Service Immobilier Service Immobilier Service Immobilier Service Immobilier Service Immobilier Service Immobilier Service Immobilier Service Immobilier Service Immobilier Service Immobilier Service Immobilier Service Immobilier
    A vendre
    CHARLEROI
    Maison
    • 5
    • 4
    Service Immobilier Service Immobilier Service Immobilier Service Immobilier Service Immobilier Service Immobilier Service Immobilier Service Immobilier Service Immobilier Service Immobilier Service Immobilier Service Immobilier Service Immobilier Service Immobilier
    A vendre
    Châtelet
    Maison
    • 3
    • 1
    • 110m²
    Service Immobilier Service Immobilier Service Immobilier Service Immobilier Service Immobilier Service Immobilier Service Immobilier Service Immobilier Service Immobilier Service Immobilier Service Immobilier Service Immobilier
    A vendre
    Châtelet
    Maison
    • 2
    • 1
    • 105m²
    Service Immobilier Service Immobilier Service Immobilier Service Immobilier Service Immobilier Service Immobilier
    A vendre
    CHATELET
    Appartement
    • 1
    • 145
    • 50m²
    Service Immobilier Service Immobilier Service Immobilier Service Immobilier Service Immobilier Service Immobilier Service Immobilier Service Immobilier Service Immobilier Service Immobilier Service Immobilier Service Immobilier Service Immobilier Service Immobilier Service Immobilier Service Immobilier Service Immobilier
    A vendre
    GOZEE
    Maison
    • 3
    • 1
    • 160m²
    Service Immobilier Service Immobilier Service Immobilier Service Immobilier Service Immobilier Service Immobilier Service Immobilier Service Immobilier Service Immobilier Service Immobilier Service Immobilier Service Immobilier Service Immobilier Service Immobilier Service Immobilier
    A vendre
    CHATELET
    Maison
    • 2
    • 1
    • 80m²
    Service Immobilier Service Immobilier Service Immobilier Service Immobilier Service Immobilier Service Immobilier Service Immobilier Service Immobilier Service Immobilier Service Immobilier Service Immobilier Service Immobilier Service Immobilier Service Immobilier Service Immobilier Service Immobilier
    A vendre
    LAMBUSART
    Maison
    • 2
    • 1
    • 155m²
    Service Immobilier Service Immobilier Service Immobilier Service Immobilier Service Immobilier Service Immobilier Service Immobilier Service Immobilier Service Immobilier Service Immobilier Service Immobilier Service Immobilier Service Immobilier Service Immobilier
    A vendre
    Châtelet
    Maison
    • 2
    • 1
    • 130m²
    Service Immobilier Service Immobilier Service Immobilier Service Immobilier Service Immobilier Service Immobilier Service Immobilier Service Immobilier Service Immobilier Service Immobilier Service Immobilier Service Immobilier
    A vendre
    CHATELET
    Maison
    • 2
    • 1
    • 80m²
    Service Immobilier Service Immobilier Service Immobilier Service Immobilier Service Immobilier Service Immobilier Service Immobilier Service Immobilier Service Immobilier Service Immobilier Service Immobilier Service Immobilier Service Immobilier
    A vendre
    GILLY
    Maison
    • 2
    • 1
    • 105m²
    Service Immobilier Service Immobilier Service Immobilier Service Immobilier Service Immobilier Service Immobilier Service Immobilier Service Immobilier Service Immobilier Service Immobilier Service Immobilier Service Immobilier Service Immobilier Service Immobilier Service Immobilier
    A vendre
    AUVELAIS
    Maison
    • 3
    • 1
    • 110m²
    Service Immobilier Service Immobilier Service Immobilier Service Immobilier Service Immobilier Service Immobilier Service Immobilier Service Immobilier Service Immobilier Service Immobilier Service Immobilier Service Immobilier Service Immobilier Service Immobilier Service Immobilier Service Immobilier Service Immobilier Service Immobilier Service Immobilier Service Immobilier
    A vendre
    GOZEE
    Maison
    • 5
    • 1
    • 230m²
    Service Immobilier Service Immobilier Service Immobilier Service Immobilier Service Immobilier Service Immobilier Service Immobilier Service Immobilier Service Immobilier Service Immobilier Service Immobilier Service Immobilier Service Immobilier Service Immobilier
    A vendre
    HAM-SUR-SAMBRE
    Maison
    • 2
    • 141
    • 85m²
    Service Immobilier Service Immobilier Service Immobilier Service Immobilier Service Immobilier Service Immobilier Service Immobilier Service Immobilier Service Immobilier Service Immobilier Service Immobilier Service Immobilier Service Immobilier Service Immobilier Service Immobilier
    A vendre
    CHARLEROI
    Maison
    • 3
    • 1
    • 105m²
    Service Immobilier Service Immobilier Service Immobilier Service Immobilier Service Immobilier Service Immobilier Service Immobilier Service Immobilier Service Immobilier Service Immobilier Service Immobilier Service Immobilier Service Immobilier Service Immobilier Service Immobilier Service Immobilier Service Immobilier Service Immobilier Service Immobilier
    A vendre
    CHATELINEAU
    Maison
    • 4
    • 1
    • 145m²
    Service Immobilier Service Immobilier Service Immobilier Service Immobilier Service Immobilier Service Immobilier Service Immobilier Service Immobilier Service Immobilier Service Immobilier Service Immobilier Service Immobilier Service Immobilier Service Immobilier Service Immobilier Service Immobilier
    A vendre
    Charleroi Montignies-sur-Sambre
    Maison
    • 3
    • 1
    • 140m²
    Service Immobilier Service Immobilier Service Immobilier Service Immobilier Service Immobilier Service Immobilier Service Immobilier Service Immobilier Service Immobilier Service Immobilier Service Immobilier Service Immobilier
    A vendre
    JUMET
    Maison
    • 2
    • 1
    • 100m²
    Service Immobilier Service Immobilier Service Immobilier Service Immobilier Service Immobilier Service Immobilier Service Immobilier Service Immobilier Service Immobilier Service Immobilier Service Immobilier
    A vendre
    CHATELET
    Maison
    • 3
    • 1
    • 130m²
    Service Immobilier Service Immobilier Service Immobilier Service Immobilier Service Immobilier Service Immobilier Service Immobilier Service Immobilier Service Immobilier Service Immobilier Service Immobilier Service Immobilier Service Immobilier Service Immobilier
    A vendre
    Châtelet
    Maison
    • 2
    • 1
    Service Immobilier Service Immobilier Service Immobilier Service Immobilier Service Immobilier Service Immobilier Service Immobilier Service Immobilier Service Immobilier Service Immobilier Service Immobilier Service Immobilier Service Immobilier Service Immobilier Service Immobilier Service Immobilier Service Immobilier Service Immobilier Service Immobilier
    A vendre
    TARCIENNE
    Maison
    • 3
    • 1
    • 110m²
    Service Immobilier Service Immobilier Service Immobilier Service Immobilier Service Immobilier Service Immobilier Service Immobilier Service Immobilier Service Immobilier Service Immobilier Service Immobilier Service Immobilier Service Immobilier Service Immobilier
    A vendre
    CHARLEROI
    Maison
    • 2
    • 1
    • 100m²
    Service Immobilier Service Immobilier Service Immobilier Service Immobilier Service Immobilier Service Immobilier Service Immobilier Service Immobilier Service Immobilier Service Immobilier Service Immobilier Service Immobilier Service Immobilier Service Immobilier Service Immobilier Service Immobilier Service Immobilier
    A vendre
    CHARLEROI
    Maison
    • 3
    • 1
    Service Immobilier Service Immobilier Service Immobilier Service Immobilier Service Immobilier Service Immobilier Service Immobilier Service Immobilier Service Immobilier Service Immobilier Service Immobilier Service Immobilier Service Immobilier Service Immobilier Service Immobilier Service Immobilier Service Immobilier Service Immobilier Service Immobilier Service Immobilier
    A vendre
    MORLANWELZ
    Maison
    • 2
    • 1
    • 105m²
    Service Immobilier Service Immobilier Service Immobilier Service Immobilier Service Immobilier Service Immobilier Service Immobilier Service Immobilier Service Immobilier Service Immobilier Service Immobilier Service Immobilier Service Immobilier Service Immobilier Service Immobilier
    A vendre
    MONT-SUR-MARCHIENNE
    Maison
    • 3
    • 1
    • 145m²
    Service Immobilier Service Immobilier Service Immobilier Service Immobilier Service Immobilier Service Immobilier Service Immobilier Service Immobilier Service Immobilier
    A vendre
    CHARLEROI
    Appartement
    • 2
    • 1
    • 90m²
    Service Immobilier Service Immobilier Service Immobilier Service Immobilier Service Immobilier Service Immobilier Service Immobilier Service Immobilier Service Immobilier Service Immobilier Service Immobilier Service Immobilier Service Immobilier Service Immobilier Service Immobilier Service Immobilier Service Immobilier
    A vendre
    AISEAU-PRESLES
    Maison
    • 2
    • 1
    • 98m²
    Service Immobilier Service Immobilier Service Immobilier Service Immobilier Service Immobilier Service Immobilier Service Immobilier Service Immobilier Service Immobilier Service Immobilier Service Immobilier Service Immobilier Service Immobilier Service Immobilier Service Immobilier Service Immobilier Service Immobilier
    A vendre
    CHATELET
    Maison
    • 3
    • 1
    • 170m²
    Service Immobilier Service Immobilier Service Immobilier Service Immobilier Service Immobilier Service Immobilier Service Immobilier Service Immobilier Service Immobilier Service Immobilier Service Immobilier
    A vendre
    CHATELET
    Maison
    • 3
    • 1
    Service Immobilier Service Immobilier Service Immobilier Service Immobilier Service Immobilier Service Immobilier Service Immobilier Service Immobilier Service Immobilier Service Immobilier Service Immobilier Service Immobilier
    A vendre
    Châtelet
    Maison
    • 2
    • 1
    • 120m²
    Service Immobilier Service Immobilier Service Immobilier Service Immobilier Service Immobilier Service Immobilier Service Immobilier Service Immobilier Service Immobilier Service Immobilier Service Immobilier Service Immobilier Service Immobilier Service Immobilier Service Immobilier Service Immobilier Service Immobilier Service Immobilier Service Immobilier Service Immobilier
    A vendre
    TARCIENNES
    Maison
    • 2
    • 1
    • 100m²
    Service Immobilier Service Immobilier Service Immobilier Service Immobilier Service Immobilier Service Immobilier Service Immobilier Service Immobilier Service Immobilier Service Immobilier
    A vendre
    ROUX
    Maison
    • 3
    • 1
    • 90m²
    Service Immobilier Service Immobilier Service Immobilier Service Immobilier Service Immobilier Service Immobilier Service Immobilier Service Immobilier Service Immobilier Service Immobilier Service Immobilier Service Immobilier Service Immobilier Service Immobilier Service Immobilier Service Immobilier
    A vendre
    FARCIENNES
    Maison
    • 2
    • 1
    • 75m²
    Service Immobilier Service Immobilier Service Immobilier Service Immobilier Service Immobilier Service Immobilier Service Immobilier Service Immobilier Service Immobilier Service Immobilier Service Immobilier Service Immobilier Service Immobilier Service Immobilier Service Immobilier Service Immobilier Service Immobilier Service Immobilier Service Immobilier Service Immobilier
    A vendre
    WANFERCEE-BAULET
    Maison
    • 3
    • 1
    • 130m²
    Service Immobilier Service Immobilier Service Immobilier Service Immobilier Service Immobilier Service Immobilier Service Immobilier Service Immobilier Service Immobilier Service Immobilier Service Immobilier Service Immobilier Service Immobilier Service Immobilier Service Immobilier Service Immobilier Service Immobilier Service Immobilier Service Immobilier Service Immobilier
    A vendre
    GERPINNES
    Maison
    • 4
    • 1
    • 190m²
    Service Immobilier Service Immobilier Service Immobilier Service Immobilier Service Immobilier Service Immobilier Service Immobilier Service Immobilier Service Immobilier Service Immobilier Service Immobilier Service Immobilier Service Immobilier Service Immobilier Service Immobilier Service Immobilier
    A vendre
    Aiseau-Presles
    Maison
    • 3
    • 2
    • 190m²
    Service Immobilier Service Immobilier Service Immobilier Service Immobilier Service Immobilier Service Immobilier Service Immobilier Service Immobilier Service Immobilier Service Immobilier Service Immobilier Service Immobilier Service Immobilier Service Immobilier
    A vendre
    RANSART
    Maison
    • 3
    • 1
    • 100m²
    Service Immobilier Service Immobilier Service Immobilier Service Immobilier Service Immobilier Service Immobilier Service Immobilier Service Immobilier Service Immobilier
    A vendre
    CHATELET
    Maison
    • 3
    • 1
    • 98m²
    Service Immobilier Service Immobilier Service Immobilier Service Immobilier Service Immobilier Service Immobilier Service Immobilier Service Immobilier Service Immobilier Service Immobilier Service Immobilier Service Immobilier Service Immobilier Service Immobilier
    A vendre
    MONT-SUR-MARCHIENNE
    Maison
    • 4
    • 1
    • 110m²
    Service Immobilier Service Immobilier Service Immobilier
    A vendre
    PRESLES
    Terrain
    Service Immobilier Service Immobilier Service Immobilier
    A vendre
    PRESLES
    Terrain
    Service Immobilier Service Immobilier Service Immobilier Service Immobilier Service Immobilier Service Immobilier Service Immobilier Service Immobilier Service Immobilier Service Immobilier Service Immobilier Service Immobilier
    A vendre
    CHATELET
    Maison
    • 2
    • 1
    Service Immobilier Service Immobilier Service Immobilier Service Immobilier Service Immobilier Service Immobilier Service Immobilier Service Immobilier
    A vendre
    CHATELET
    Commercial
    • 560m²
    Service Immobilier Service Immobilier Service Immobilier Service Immobilier Service Immobilier Service Immobilier Service Immobilier Service Immobilier Service Immobilier Service Immobilier
    A vendre
    CHATELET
    Commercial
    • 1100m²
    Service Immobilier Service Immobilier Service Immobilier Service Immobilier Service Immobilier Service Immobilier Service Immobilier Service Immobilier Service Immobilier Service Immobilier Service Immobilier Service Immobilier Service Immobilier Service Immobilier Service Immobilier Service Immobilier
    A vendre
    Aiseau-Presles
    Maison
    • 2
    • 1
    • 115m²
    Service Immobilier Service Immobilier Service Immobilier Service Immobilier Service Immobilier Service Immobilier Service Immobilier Service Immobilier Service Immobilier Service Immobilier Service Immobilier Service Immobilier Service Immobilier Service Immobilier Service Immobilier
    A vendre
    CHATELET
    Maison
    • 3
    • 1
    • 110m²
    Service Immobilier Service Immobilier Service Immobilier Service Immobilier Service Immobilier Service Immobilier Service Immobilier Service Immobilier Service Immobilier Service Immobilier Service Immobilier Service Immobilier Service Immobilier Service Immobilier Service Immobilier Service Immobilier
    A vendre
    CHATELET
    Maison
    • 3
    • 1
    • 160m²
    Service Immobilier Service Immobilier Service Immobilier Service Immobilier Service Immobilier Service Immobilier Service Immobilier Service Immobilier Service Immobilier Service Immobilier Service Immobilier
    A vendre
    FARCIENNES
    Maison
    • 2
    • 1
    • 90m²
    Service Immobilier Service Immobilier Service Immobilier Service Immobilier Service Immobilier Service Immobilier Service Immobilier Service Immobilier Service Immobilier Service Immobilier Service Immobilier
    A vendre
    Farciennes
    Maison
    • 2
    • 1
    • 120m²
    Service Immobilier Service Immobilier Service Immobilier Service Immobilier Service Immobilier Service Immobilier Service Immobilier Service Immobilier Service Immobilier Service Immobilier Service Immobilier Service Immobilier Service Immobilier Service Immobilier Service Immobilier Service Immobilier Service Immobilier Service Immobilier
    A vendre
    PONT-DE-LOUP
    Maison
    • 3
    • 2
    • 120m²
    Service Immobilier Service Immobilier Service Immobilier Service Immobilier Service Immobilier Service Immobilier Service Immobilier Service Immobilier Service Immobilier Service Immobilier Service Immobilier Service Immobilier Service Immobilier
    A vendre
    CHATELINEAU
    Maison
    • 16
    • 7
    • 650m²
    Service Immobilier Service Immobilier Service Immobilier Service Immobilier Service Immobilier Service Immobilier Service Immobilier Service Immobilier Service Immobilier Service Immobilier Service Immobilier Service Immobilier Service Immobilier Service Immobilier Service Immobilier
    A vendre
    Montignies-sur-Sambre
    Maison
    • 4
    • 1
    • 170m²
    Service Immobilier Service Immobilier Service Immobilier Service Immobilier Service Immobilier Service Immobilier Service Immobilier Service Immobilier Service Immobilier Service Immobilier Service Immobilier
    A vendre
    Moignelée
    Maison
    • 1
    • 1
    • 60m²
    Service Immobilier Service Immobilier Service Immobilier Service Immobilier Service Immobilier Service Immobilier Service Immobilier Service Immobilier Service Immobilier Service Immobilier Service Immobilier Service Immobilier Service Immobilier Service Immobilier Service Immobilier Service Immobilier Service Immobilier Service Immobilier Service Immobilier Service Immobilier Service Immobilier
    A vendre
    FLORENNES
    Maison
    • 3
    • 1
    • 125m²
    Service Immobilier Service Immobilier Service Immobilier Service Immobilier Service Immobilier Service Immobilier Service Immobilier Service Immobilier Service Immobilier Service Immobilier Service Immobilier Service Immobilier Service Immobilier
    A vendre
    Charleroi
    Maison
    • 6
    • 2
    • 200m²
    Service Immobilier Service Immobilier Service Immobilier Service Immobilier Service Immobilier Service Immobilier Service Immobilier Service Immobilier Service Immobilier Service Immobilier Service Immobilier Service Immobilier Service Immobilier
    A vendre
    Charleroi
    Maison
    • 3
    • 1
    • 180m²
    Service Immobilier Service Immobilier Service Immobilier Service Immobilier Service Immobilier Service Immobilier Service Immobilier Service Immobilier Service Immobilier
    A vendre
    Charleroi
    Maison
    • 5
    • 3
    • 180m²
    Service Immobilier Service Immobilier Service Immobilier Service Immobilier Service Immobilier Service Immobilier
    A vendre
    BOUFFIOULX
    Terrain
    Service Immobilier Service Immobilier Service Immobilier Service Immobilier Service Immobilier Service Immobilier Service Immobilier Service Immobilier Service Immobilier Service Immobilier Service Immobilier Service Immobilier Service Immobilier Service Immobilier Service Immobilier Service Immobilier Service Immobilier Service Immobilier
    A vendre
    VILLERS-LE-GAMBON
    Maison
    • 5
    • 1
    • 130m²
    Service Immobilier Service Immobilier Service Immobilier Service Immobilier Service Immobilier Service Immobilier Service Immobilier Service Immobilier Service Immobilier Service Immobilier Service Immobilier Service Immobilier Service Immobilier Service Immobilier Service Immobilier Service Immobilier Service Immobilier Service Immobilier Service Immobilier Service Immobilier Service Immobilier Service Immobilier Service Immobilier Service Immobilier
    A vendre
    TAMINES
    Maison
    • 7
    • 2
    • 290m²
    Service Immobilier Service Immobilier Service Immobilier Service Immobilier Service Immobilier Service Immobilier Service Immobilier Service Immobilier Service Immobilier Service Immobilier Service Immobilier Service Immobilier Service Immobilier Service Immobilier
    A vendre
    MONT-SUR-MARCHIENNE
    Appartement
    • 1
    • 1
    • 60m²
    Service Immobilier Service Immobilier Service Immobilier Service Immobilier Service Immobilier Service Immobilier Service Immobilier Service Immobilier Service Immobilier Service Immobilier Service Immobilier
    A vendre
    GOSSELIES
    Maison
    • 1
    • 1
    • 90m²
    Service Immobilier Service Immobilier Service Immobilier Service Immobilier Service Immobilier Service Immobilier Service Immobilier Service Immobilier Service Immobilier
    A vendre
    Châtelet
    Maison
    • 2
    • 1
    • 60m²
    Service Immobilier Service Immobilier Service Immobilier Service Immobilier Service Immobilier Service Immobilier Service Immobilier Service Immobilier Service Immobilier Service Immobilier Service Immobilier Service Immobilier Service Immobilier Service Immobilier Service Immobilier
    A vendre
    Dampremy
    Maison
    • 3
    • 1
    • 80m²
    Service Immobilier Service Immobilier Service Immobilier Service Immobilier Service Immobilier Service Immobilier Service Immobilier Service Immobilier Service Immobilier Service Immobilier Service Immobilier Service Immobilier Service Immobilier Service Immobilier Service Immobilier Service Immobilier Service Immobilier Service Immobilier Service Immobilier Service Immobilier Service Immobilier
    A vendre
    COUILLET
    Maison
    • 4
    • 2
    • 145m²
    Service Immobilier Service Immobilier Service Immobilier Service Immobilier Service Immobilier Service Immobilier Service Immobilier Service Immobilier Service Immobilier Service Immobilier Service Immobilier Service Immobilier Service Immobilier Service Immobilier Service Immobilier Service Immobilier Service Immobilier Service Immobilier Service Immobilier Service Immobilier Service Immobilier
    A vendre
    CHARLEROI
    Maison
    • 8
    • 5
    • 285m²
    Service Immobilier Service Immobilier Service Immobilier Service Immobilier Service Immobilier Service Immobilier Service Immobilier Service Immobilier Service Immobilier Service Immobilier Service Immobilier Service Immobilier Service Immobilier Service Immobilier Service Immobilier Service Immobilier Service Immobilier Service Immobilier
    A vendre
    LODELINSART
    Maison
    • 2
    • 1
    • 135m²
    Service Immobilier Service Immobilier Service Immobilier Service Immobilier Service Immobilier Service Immobilier Service Immobilier Service Immobilier Service Immobilier Service Immobilier Service Immobilier Service Immobilier Service Immobilier Service Immobilier Service Immobilier Service Immobilier Service Immobilier Service Immobilier Service Immobilier Service Immobilier
    A vendre
    CHATELINEAU
    Maison
    • 3
    • 1
    • 125m²
    Service Immobilier Service Immobilier Service Immobilier Service Immobilier Service Immobilier Service Immobilier Service Immobilier Service Immobilier Service Immobilier Service Immobilier Service Immobilier Service Immobilier Service Immobilier Service Immobilier Service Immobilier Service Immobilier Service Immobilier Service Immobilier Service Immobilier Service Immobilier Service Immobilier
    A vendre
    GERPINNES
    Maison
    • 3
    • 1
    Service Immobilier Service Immobilier Service Immobilier Service Immobilier Service Immobilier Service Immobilier Service Immobilier Service Immobilier Service Immobilier Service Immobilier Service Immobilier Service Immobilier Service Immobilier Service Immobilier Service Immobilier Service Immobilier Service Immobilier Service Immobilier Service Immobilier Service Immobilier Service Immobilier Service Immobilier Service Immobilier Service Immobilier Service Immobilier Service Immobilier Service Immobilier Service Immobilier Service Immobilier Service Immobilier Service Immobilier Service Immobilier Service Immobilier Service Immobilier Service Immobilier Service Immobilier Service Immobilier Service Immobilier Service Immobilier Service Immobilier Service Immobilier Service Immobilier Service Immobilier Service Immobilier Service Immobilier
    A vendre
    Charleroi
    Maison
    • 14
    • 5
    • 500m²
    Service Immobilier Service Immobilier Service Immobilier Service Immobilier Service Immobilier Service Immobilier Service Immobilier Service Immobilier Service Immobilier Service Immobilier Service Immobilier Service Immobilier Service Immobilier Service Immobilier Service Immobilier Service Immobilier Service Immobilier Service Immobilier Service Immobilier Service Immobilier Service Immobilier Service Immobilier
    A vendre
    ROUX
    Maison
    • 3
    • 2
    • 185m²
    Service Immobilier Service Immobilier Service Immobilier Service Immobilier Service Immobilier Service Immobilier Service Immobilier Service Immobilier Service Immobilier Service Immobilier Service Immobilier Service Immobilier Service Immobilier Service Immobilier
    A vendre
    FLORENNES
    Maison
    • 4
    • 2
    • 215m²
    A vendre
    AISEAU-PRESLES
    Terrain
    140.000€
    A vendre
    AISEAU-PRESLES
    Terrain
    160.000€
    Service Immobilier Service Immobilier Service Immobilier Service Immobilier Service Immobilier Service Immobilier Service Immobilier Service Immobilier Service Immobilier Service Immobilier Service Immobilier Service Immobilier Service Immobilier Service Immobilier Service Immobilier Service Immobilier Service Immobilier Service Immobilier Service Immobilier Service Immobilier Service Immobilier Service Immobilier Service Immobilier Service Immobilier Service Immobilier Service Immobilier Service Immobilier
    A vendre
    GOURDINNE (limite Nalinnes)
    Maison
    • 5
    • 1
    • 220m²
    Service Immobilier Service Immobilier Service Immobilier Service Immobilier Service Immobilier Service Immobilier Service Immobilier Service Immobilier Service Immobilier Service Immobilier Service Immobilier Service Immobilier Service Immobilier Service Immobilier Service Immobilier Service Immobilier Service Immobilier Service Immobilier Service Immobilier Service Immobilier
    A vendre
    LIGNY
    Maison
    • 4
    • 1
    • 250m²
    Service Immobilier Service Immobilier Service Immobilier Service Immobilier Service Immobilier Service Immobilier Service Immobilier Service Immobilier Service Immobilier Service Immobilier Service Immobilier Service Immobilier Service Immobilier Service Immobilier Service Immobilier Service Immobilier Service Immobilier Service Immobilier
    A vendre
    NALINNES
    Maison
    • 4
    • 1
    • 180m²
    A vendre
    VITRIVAL
    Terrain
    79.000€
    Service Immobilier Service Immobilier Service Immobilier Service Immobilier Service Immobilier Service Immobilier Service Immobilier Service Immobilier Service Immobilier Service Immobilier Service Immobilier Service Immobilier Service Immobilier Service Immobilier Service Immobilier Service Immobilier Service Immobilier Service Immobilier Service Immobilier Service Immobilier Service Immobilier Service Immobilier Service Immobilier Service Immobilier Service Immobilier
    A vendre
    Presles
    Maison
    • 3
    • 2
    • 350m²
    A vendre
    CHATELET
    Terrain
    125.000€
    Envie de recevoir les biens avant leur parution ?
    Inscrivez-vous
    Suivez-nous sur
    @ServiceImmobilier
    Rénovation

    Travaux de
    rénovation.

    Notre engagement : vous proposer des solutions immobilières sur-mesure, en toute transparence et avec une expertise irréprochable…

    Agences

    Les garanties de
    travailler avec nous.

    Notre engagement : vous proposer des solutions immobilières sur-mesure, en toute transparence et avec une expertise irréprochable…

    Conseils

    Les conseils
    des experts.

    Notre engagement : vous proposer des solutions immobilières sur-mesure, en toute transparence et avec une expertise irréprochable…